Quadrilocale in vendita

Castellamonte, Via G. Buffa
€ 139.000
4 locali 4 locali
150 Mq 150 Mq
2 bagni 2 bagni

Quadrilocale in vendita

Castellamonte, Via G. Buffa

Descrizione annuncio

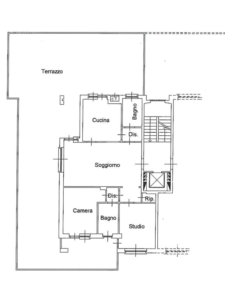
In zona semi-centrale e comodo al mercalo, alla stazione dei pullman e alle scuole; appartamento sito al piano primo in palazzina dotata di ascensore.

L'ingresso è sulla zona giorno che si compone di un luminoso soggiorno, una cucina abitabile ed un primo bagno.

La zona notte ospita due camere da letto e un secondo bagno.

A impreziosire l'immobile vi è un ampio terrazzo di circa centosessanta metri quadrati da poter sfruttare nella bella stagione.

Il riscaldamento è autonomo a radiatori alimentati a metano.

A corredo della proprietà vi è una pratica cantina sita al piano secondo interrato.

Questa soluzione è ideale per chi è alla ricerca di un immobile comodo ai servizi, con un ampio spazio esterno e con poche spese condominiali.

Mostra tutto

Nelle vicinanze

Trasporto pubblico Trasporto pubblico
Castellamonte (ex Stazione)
Castellamonte (ex Stazione)
60 m
Castellamonte (v. Romana)
Castellamonte (v. Romana)
190 m
Scuole Scuole
Liceo Artistico Statale Felice Faccio
120 m
Scuola Materna "Giraudo"
230 m
Scuola Primaria di Spineto
2,3 Km
Farmacia Farmacia
Farmacia Garelli
280 m
Farmacia Mazzini Dottor Giuseppe
470 m
Farmacia Spineto
2,1 Km
Ospedali Ospedali
Ospedale Civile di Castellamonte
480 m
Supermercati Supermercati
Dpiù Discount
80 m
Bennet
200 m
Supermercati
250 m
Penny Market Castellamonte
1,2 Km
Negozi Negozi
Ilie
230 m
Voglia Di Pane
370 m
Negozi
2,3 Km
Bar Bar
La Cambusa
950 m
Bar
2,3 Km
Ristoranti Ristoranti
Caly
1,4 Km
Bar Ristoro da Gelsomina
1,6 Km
Ristorante Pizzeria Lo Spineto
2,4 Km
Mostra tutto

Caratteristiche

Rif.:
61045140
Piano:
1 di 6 con ascensore (Piano basso)
Terrazzi:
1
Camere da letto:
2
Arredamento:
Assente
Condizionamento:
Assente
Mostra tutto
Prezzo Prezzo
€ 139.000
Rata mutuo Rata mutuo
€ 649 / mese
Spese annue Spese annue
€ 800
Proponi il tuo prezzoProponi il tuo prezzo

Classe Energetica

D
D
D
D
D
D
D
D
D
EP globale non rinnovabile:
199.83 kW h/m² anno
EP globale rinnovabile:
1.07 kW h/m² anno
EP invernale del fabbricato:
EP estiva del fabbricato:
Anno di costruzione:
2006
Riscaldamento:
Autonomo
Tipo impianto:
A radiatori
Tipo alimentazione:
Metano

Ti interessa visionare l'immobile?

Fissa un appuntamento  Fissa un appuntamento

Richiedi informazioni

Clicca su Leggi per aprire l'informativa
* Questi campi sono obbligatori

Calcola il tuo mutuo

Semplice e senza impegno
Anticipo

( % )
Mutuo

( % )

pochi semplici passi

inserisci i tuoi dati
Questionario completato
Grazie per aver richiesto un appuntamento senza impegno con un nostro Consulente del Credito e Assicurativo.

Hai inserito correttamente tutti i dati necessari e a breve riceverai una e-mail con un link da convalidare per inviare i tuoi dati.
Affiliato
Studio Castellamonte Uno Sas
Via Tenente Sergio Morello, 11 10081 Castellamonte (TO)

Il nostro staff


  • Anna Bozzello Verole
    Coordinatrice

  • Viktor Dipace
    Collaboratore

  • Jody Fontana
    Affiliato

  • Giada Magnani
    Collaboratrice

  • Luca Nicotra
    Collaboratore

  • Riccardo Ronza
    Affiliato

  • Matilde Roasio
    Collaboratrice
Via Tenente Sergio Morello, 11 10081 Castellamonte (TO)
Zona: Castellamonte-Valchiusella-Torre C.se-Bairo
Mostra su mappa
Orari: LUN - VEN 9.00 - 12.30 / 14.30 - 19.30 SAB. 9.00 - 12.30 / 14.30 - 18.30
Affiliato
Studio Castellamonte Uno Sas
Via Tenente Sergio Morello, 11 10081 Castellamonte (TO)

2026 Tecnocasa Franchising S.p.A. - P. IVA 08365160152 - Via Monte Bianco 60/A 20089 Rozzano (MI). Ogni agenzia ha un proprio titolare ed è autonoma. Privacy policy | Policy utilizzo | Cookie policy