Casa indipendente in vendita

Castellamonte, Frazione Filia - Filia
€ 119.000
3 locali 3 locali
75 Mq 75 Mq
2 bagni 2 bagni

Casa indipendente in vendita

Castellamonte, Frazione Filia - Filia

Descrizione annuncio

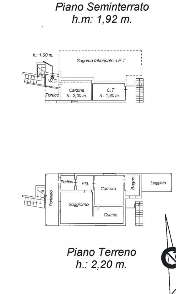
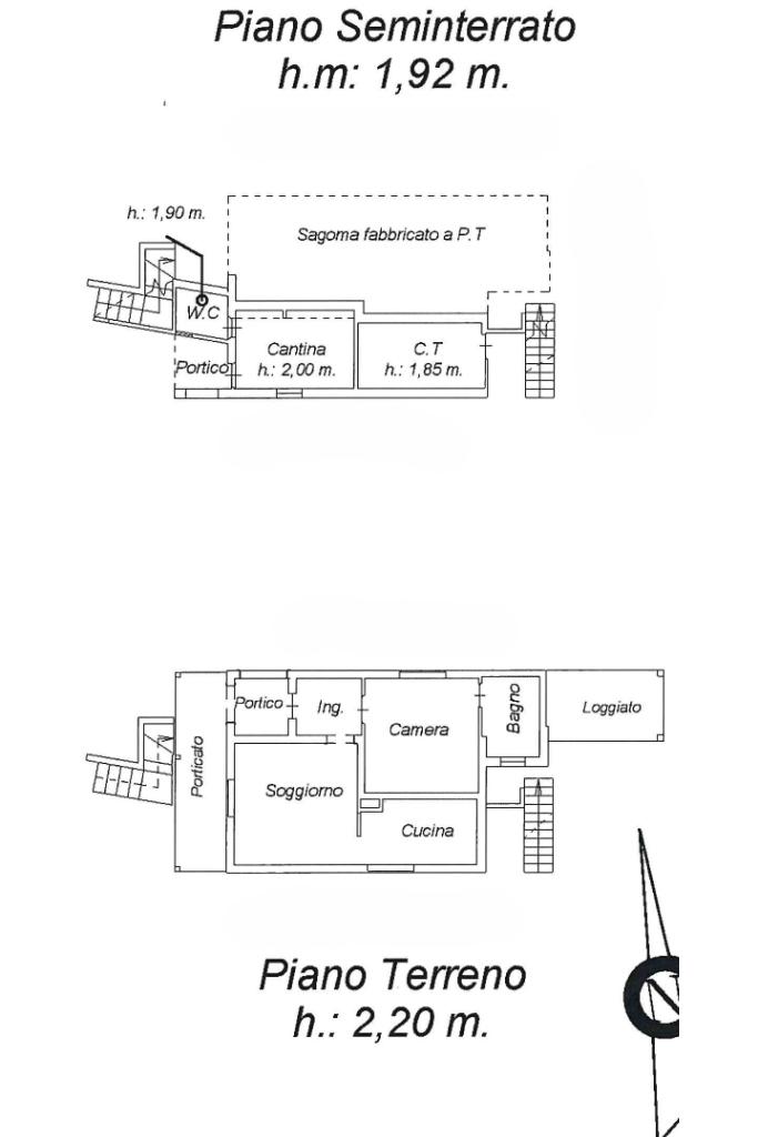
Immersa nel verde della frazione di Filia, casa indipendente con giardino.

La parte abitativa si sviluppa su un unico livello, al piano terreno, dove cucina e soggiorno formano un unico ambiente, molto accogliente e luminoso.

La camera da letto gode di una generosa metratura ed il bagno è dotato di doccia.

Il piano seminterrato ospita un ulteriore bagno e un locale cantina.

Il riscaldamento è autonomo a radiatori alimentati sia dal . che dalla termostufa a pellet.

Tutti gli infissi sono doppi, dotati di vetrocamera in pvc.

L'immobile ha la possibilità di poter eseguire un ampliamento di circa 20 mq.

Questa soluzione è ideale per chi desidera vivere in un posto in armonia con la natura ed in cui poter passare giornate in relax e serate in compagnia di amici e parenti lontano dal caos quotidiano.

Mostra tutto

Nelle vicinanze

Trasporto pubblico Trasporto pubblico
Castellamonte (Filia-loc Locanda)
Castellamonte (Filia-loc Locanda)
1,1 Km
Castellamonte (Filia-Chiesetta)
Castellamonte (Filia-Chiesetta)
1,3 Km
Scuole Scuole
Scuole
2,2 Km
Farmacia Farmacia
Farmacia
2,9 Km
Bar Bar
La piola
2,8 Km
Ristoranti Ristoranti
Societa' Agricola Operaia Di Mutuo Soccorso Di Filia
810 m
Cascina della Marcellina
1,6 Km
la terrazza sul canavese
2,1 Km
Bar Ristoro da Gelsomina
2,7 Km
Mostra tutto

Caratteristiche

Rif.:
61154225
Piano:
Su più livelli di 2
Totale piani:
2
Posti auto:
2
Balconi:
1
Terrazzi:
1
Mostra tutto
Prezzo Prezzo
€ 119.000
Rata mutuo Rata mutuo
€ 562 / mese
Spese annue Spese annue
€ 0
Proponi il tuo prezzoProponi il tuo prezzo

Classe Energetica

F
F
F
F
F
F
F
F
F
EP globale non rinnovabile:
370.76 kW h/m² anno
EP globale rinnovabile:
1.41 kW h/m² anno
EP invernale del fabbricato:
EP estiva del fabbricato:
Anno di costruzione:
1980
Riscaldamento:
Autonomo
Tipo impianto:
A radiatori
Tipo alimentazione:
GPL

Ti interessa visionare l'immobile?

Fissa un appuntamento  Fissa un appuntamento

Richiedi informazioni

Clicca su Leggi per aprire l'informativa
* Questi campi sono obbligatori

Calcola il tuo mutuo

Semplice e senza impegno
Anticipo

( % )
Mutuo

( % )

pochi semplici passi

inserisci i tuoi dati
Questionario completato
Grazie per aver richiesto un appuntamento senza impegno con un nostro Consulente del Credito e Assicurativo.

Hai inserito correttamente tutti i dati necessari e a breve riceverai una e-mail con un link da convalidare per inviare i tuoi dati.
Affiliato
Studio Castellamonte Uno Sas
Via Tenente Sergio Morello, 11 10081 Castellamonte (TO)

Il nostro staff


  • Anna Bozzello Verole
    Coordinatrice

  • Viktor Dipace
    Collaboratore

  • Jody Fontana
    Affiliato

  • Luca Nicotra
    Collaboratore

  • Riccardo Ronza
    Affiliato
Via Tenente Sergio Morello, 11 10081 Castellamonte (TO)
Zona: Castellamonte-Valchiusella-Torre C.se-Bairo
Mostra su mappa
Orari: LUN - VEN 9.00 - 12.30 / 14.30 - 19.30 SAB. 9.00 - 12.30 / 14.30 - 18.30
Affiliato
Studio Castellamonte Uno Sas
Via Tenente Sergio Morello, 11 10081 Castellamonte (TO)

2025 Tecnocasa Franchising S.p.A. - P. IVA 08365160152 - Via Monte Bianco 60/A 20089 Rozzano (MI). Ogni agenzia ha un proprio titolare ed è autonoma. Privacy policy | Policy utilizzo | Cookie policy