Casa semindipendente in vendita

Castellamonte, Frazione Spineto - Canton Belvedere
€ 159.000
Prezzo aggiornato
3 locali 3 locali
130 Mq 130 Mq
1 bagno 1 bagno

Casa semindipendente in vendita

Castellamonte, Frazione Spineto - Canton Belvedere

Descrizione annuncio

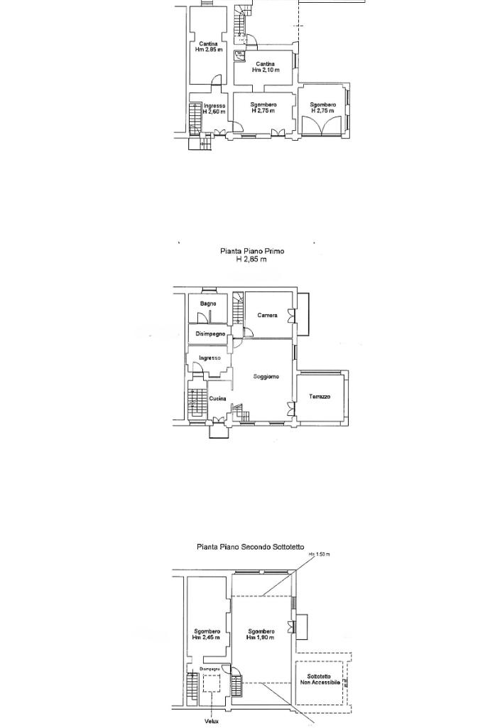
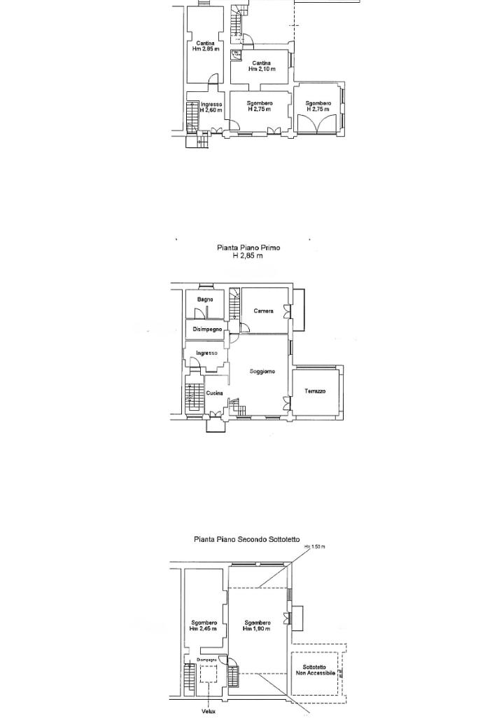
Immersa nel verde della frazione di Spineto, casa semindipendente disposta su tre livelli con giardino di proprietà in cui potersi rilassare e far giocare i propri bimbi ed i propri amici a quattro zampe.

Al piano terreno si trova un pratico box auto ed alcuni locali utilizzabili come deposito.

La zona abitativa si sviluppa al piano primo, che si compone di uno spazioso soggiorno dotato di angolo cottura ed il tutto affaccia sul terrazzo coperto.

La zona notte è composta di una camera da letto e di un bagno dotato di doccia.

Tutti questi ambienti hanno subito una ristrutturazione circa tre anni fa.

Il terzo ed ultimo piano è un sottotetto non abitabile.

Il riscaldamento è autonomo a radiatori alimentati a GPL; inoltre è presente una termostufa.

Questa soluzione si addice a coloro che sono alla ricerca di un immobile in posizione tranquilla e soleggiata a pochi passi dai principali servizi.

Mostra tutto

Nelle vicinanze

Trasporto pubblico Trasporto pubblico
Cuorgnè
Cuorgnè
1,6 Km
Valperga
Valperga
2,6 Km
Spineto (v. Cuorgne' 133)
Spineto (v. Cuorgne' 133)
580 m
Spineto (Piova-Mulino)
Spineto (Piova-Mulino)
670 m
Scuole Scuole
Scuola Primaria di Spineto
980 m
CESMA Formazione&cultura
1,7 Km
Scuola Elementare Aldo Peno
2,1 Km
Asilo "Mamma Tilde"
2,1 Km
Scuole
2,2 Km
Farmacia Farmacia
Farmacia Spineto
1,2 Km
Farmacia
1,7 Km
Farmacia Dr. Elio Vallero
2,6 Km
Farmacia Mazzini Dottor Giuseppe
2,9 Km
Ospedali Ospedali
Ospedale Civile di Cuorgnè
2,0 Km
Ospedale Civile di Castellamonte
2,9 Km
Supermercati Supermercati
IperCoop
1,2 Km
Cascina La Turna
1,3 Km
Penny Market
1,4 Km
D-più
1,8 Km
EuroSpin
1,8 Km
Negozi Negozi
Negozi
1,0 Km
Panificio Rolle
1,5 Km
Flavio & Susi Pasticceria
1,7 Km
Il Cucciolo
1,7 Km
Mirage
1,7 Km
Bar Bar
Bar
1,0 Km
La Tavernetta
1,5 Km
Caffè Stazione
1,6 Km
My Coffee
1,7 Km
Bar Quindici
1,8 Km
Ristoranti Ristoranti
Ristorante Pizzeria Lo Spineto
950 m
Ristoranti
1,5 Km
Long Da
1,5 Km
Pizzeria Primavera
1,8 Km
Ristorante Pizzeria Royal
1,9 Km
Mostra tutto

Caratteristiche

Rif.:
61166467
Piano:
3 di 3 (Piano su più livelli)
Box:
1
Posti auto:
1
Balconi:
3
Terrazzi:
1
Mostra tutto
Prezzo Prezzo
€ 159.000
Rata mutuo Rata mutuo
€ 752 / mese
Spese annue Spese annue
€ 0
Proponi il tuo prezzoProponi il tuo prezzo

Classe Energetica

E
E
E
E
E
E
E
E
E
EP globale non rinnovabile:
247.37 kW h/m² anno
EP globale rinnovabile:
2.78 kW h/m² anno
EP invernale del fabbricato:
EP estiva del fabbricato:
Anno di costruzione:
1980
Riscaldamento:
Autonomo
Tipo impianto:
A radiatori
Tipo alimentazione:
GPL

Prezzo ridotto di €1 (6%%)

Ti interessa visionare l'immobile?

Fissa un appuntamento  Fissa un appuntamento

Richiedi informazioni

Clicca su Leggi per aprire l'informativa
* Questi campi sono obbligatori

Calcola il tuo mutuo

Semplice e senza impegno
Anticipo

( % )
Mutuo

( % )

pochi semplici passi

inserisci i tuoi dati
Questionario completato
Grazie per aver richiesto un appuntamento senza impegno con un nostro Consulente del Credito e Assicurativo.

Hai inserito correttamente tutti i dati necessari e a breve riceverai una e-mail con un link da convalidare per inviare i tuoi dati.
Affiliato
Studio Castellamonte Uno Sas
Via Tenente Sergio Morello, 11 10081 Castellamonte (TO)

Il nostro staff


  • Anna Bozzello Verole
    Coordinatrice

  • Viktor Dipace
    Collaboratore

  • Jody Fontana
    Affiliato

  • Luca Nicotra
    Collaboratore

  • Riccardo Ronza
    Affiliato

  • Matilde Roasio
    Collaboratrice
Via Tenente Sergio Morello, 11 10081 Castellamonte (TO)
Zona: Castellamonte-Valchiusella-Torre C.se-Bairo
Mostra su mappa
Orari: LUN - VEN 9.00 - 12.30 / 14.30 - 19.30 SAB. 9.00 - 12.30 / 14.30 - 18.30
Affiliato
Studio Castellamonte Uno Sas
Via Tenente Sergio Morello, 11 10081 Castellamonte (TO)

2026 Tecnocasa Franchising S.p.A. - P. IVA 08365160152 - Via Monte Bianco 60/A 20089 Rozzano (MI). Ogni agenzia ha un proprio titolare ed è autonoma. Privacy policy | Policy utilizzo | Cookie policy