Casa indipendente in vendita

Val Di Chy, Via Chiartano - Lugnacco
€ 149.000
6 locali 6 locali
330 Mq 330 Mq
3 bagni 3 bagni

Casa indipendente in vendita

Val Di Chy, Via Chiartano - Lugnacco

Descrizione annuncio

VENDESI NUDA PROPRIETA' di casa indipendente disposta su più livelli con circa tredicimila metri di terreno privato nel cuore della Valchiusella.

L'immobile è stato interamente restaurato mantendo così gli originali materiali di costruzione che lo rendono unico nel suo genere.

Questa soluzione ha subito inoltre una ristrutturazione completa basata principalmente sul miglioramento energetico con l'installazione di infissi a triplo vetro, rifacimento totale del tetto, installazione di pannelli fotovoltaici da 6,6 kwatt, installazione di pompe di calore nella zona abitativa e installazione del cappotto termico.

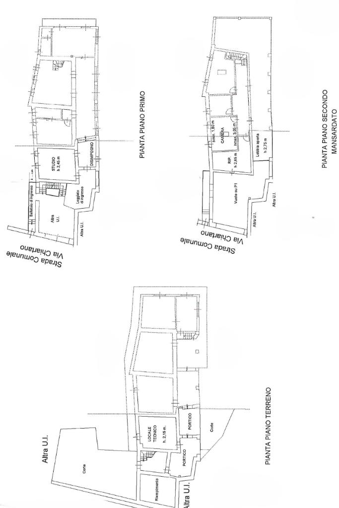
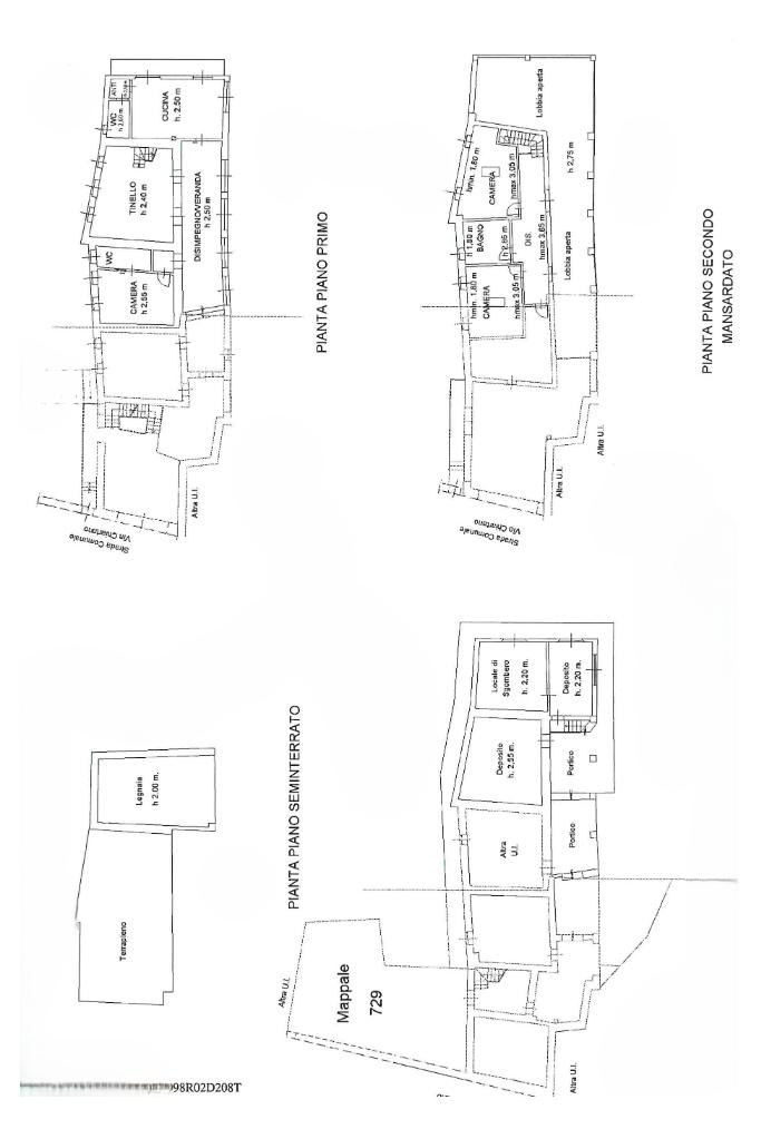
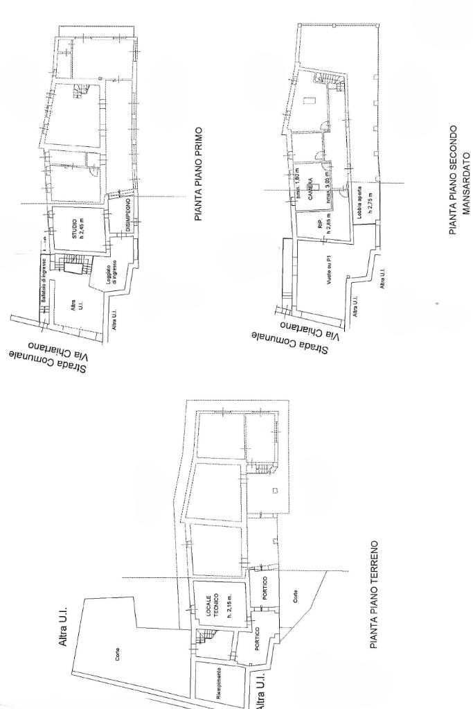
La soluzione si sviluppa su tre livelli; il piano terreno ospita alcuni locali deposito, cantine e il locale tecnico.

Al piano primo si sviluppa la zona giorno impreziosita da numerose finestre che garantiscono una grande luminosità.

Il piano secondo ospita la zona notte e un terrazzo di generosa metratura da poter sfruttare come zona relax per via dell'ottima vista panoramica sul paese e sulle montagne circostanti.

A corredo della proprietà vi un fienile risalente da poter sfruttare come ulteriore zona abitativa o come deposito.

Questa soluzione potrebbe essere utilizzata anche come struttura recettiva vista la posizione e la grande metratura.

Mostra tutto

Nelle vicinanze

Trasporto pubblico Trasporto pubblico
Pecco
Pecco
270 m
Pecco (bv. Circonv.)
Pecco (bv. Circonv.)
350 m
Scuole Scuole
Scuola Primaria Statale di Vistrorio
1,1 Km
Scuola Primaria Statale di Loranzè
2,9 Km
Farmacia Farmacia
Farmacia Presbitero Bracco
1,4 Km
Farmacia Parella
2,4 Km
Farmacia
2,6 Km
Farmacia Lo Verde
2,8 Km
Negozi Negozi
Le Tome di Villa - panini, salumi, formaggi
1,0 Km
Negozi
1,1 Km
A&O Vistrorio
1,1 Km
Mini Market Il Gusto Giusto
1,2 Km
Alimentari Sorelle Gamerro
1,4 Km
Ristoranti Ristoranti
Pizzeria La Torbiera
1,1 Km
Ristorante La Tofeja
1,1 Km
La Tana del Lupo
1,3 Km
L'Ostegatto
1,8 Km
Trattoria La Piazzetta
1,9 Km
Mostra tutto

Caratteristiche

Rif.:
61123152
Piano:
3 di 3 (Piano su più livelli)
Box:
2
Posti auto:
3
Balconi:
2
Terrazzi:
1
Mostra tutto
Prezzo Prezzo
€ 149.000
Rata mutuo Rata mutuo
€ 696 / mese
Spese annue Spese annue
€ 0
Proponi il tuo prezzoProponi il tuo prezzo

Classe Energetica

A3
A3
A3
A3
A3
A3
A3
A3
A3
EP globale non rinnovabile:
56.69 kW h/m² anno
EP globale rinnovabile:
80.00 kW h/m² anno
EP invernale del fabbricato:
EP estiva del fabbricato:
Anno di costruzione:
1600
Riscaldamento:
Autonomo
Tipo impianto:
A stufa
Tipo alimentazione:
Altro

Ti interessa visionare l'immobile?

Fissa un appuntamento  Fissa un appuntamento

Richiedi informazioni

Clicca su Leggi per aprire l'informativa
* Questi campi sono obbligatori

Calcola il tuo mutuo

Semplice e senza impegno
Anticipo

( % )
Mutuo

( % )

pochi semplici passi

inserisci i tuoi dati
Questionario completato
Grazie per aver richiesto un appuntamento senza impegno con un nostro Consulente del Credito e Assicurativo.

Hai inserito correttamente tutti i dati necessari e a breve riceverai una e-mail con un link da convalidare per inviare i tuoi dati.
Affiliato
Studio Castellamonte Uno Sas
Via Tenente Sergio Morello, 11 10081 Castellamonte (TO)

Il nostro staff


  • Anna Bozzello Verole
    Coordinatrice

  • Viktor Dipace
    Collaboratore

  • Jody Fontana
    Affiliato

  • Giada Magnani
    Collaboratrice

  • Luca Nicotra
    Collaboratore

  • Riccardo Ronza
    Affiliato

  • Matilde Roasio
    Collaboratrice
Via Tenente Sergio Morello, 11 10081 Castellamonte (TO)
Zona: Castellamonte-Valchiusella-Torre C.se-Bairo
Mostra su mappa
Orari: LUN - VEN 9.00 - 12.30 / 14.30 - 19.30 SAB. 9.00 - 12.30 / 14.30 - 18.30
Affiliato
Studio Castellamonte Uno Sas
Via Tenente Sergio Morello, 11 10081 Castellamonte (TO)

2026 Tecnocasa Franchising S.p.A. - P. IVA 08365160152 - Via Monte Bianco 60/A 20089 Rozzano (MI). Ogni agenzia ha un proprio titolare ed è autonoma. Privacy policy | Policy utilizzo | Cookie policy