Rustico in vendita

Val Di Chy, Via Gaeta - Raghetto
€ 15.000
4 locali 4 locali
60 Mq 60 Mq

Rustico in vendita

Val Di Chy, Via Gaeta - Raghetto

Descrizione annuncio

Immerso nel verde e nella tranquillità della natura rustico semindipendente con giardino privato.

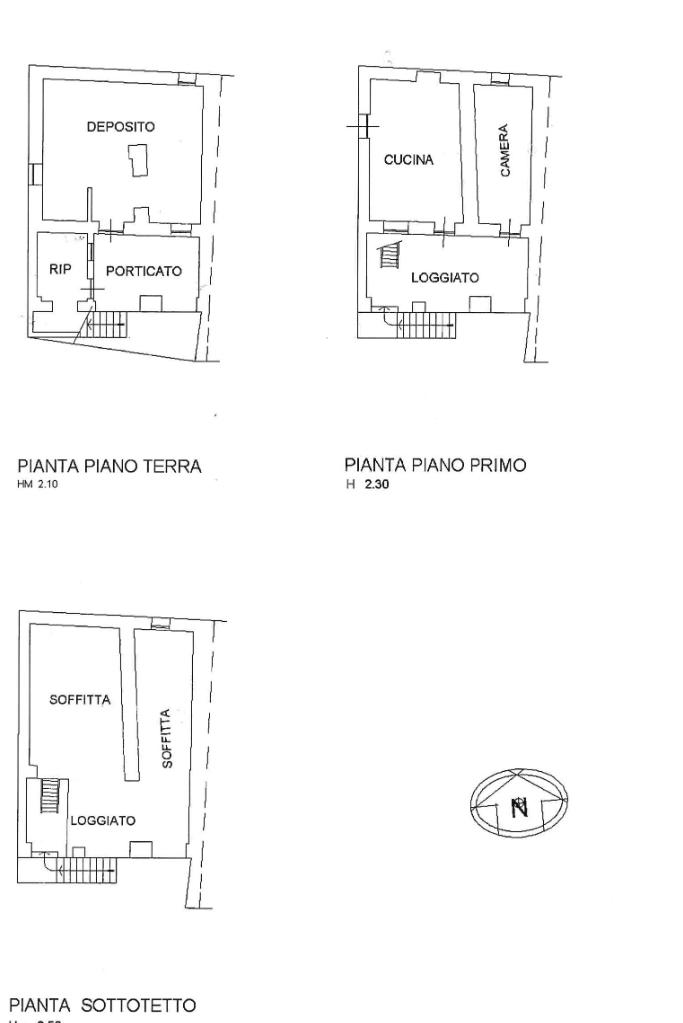
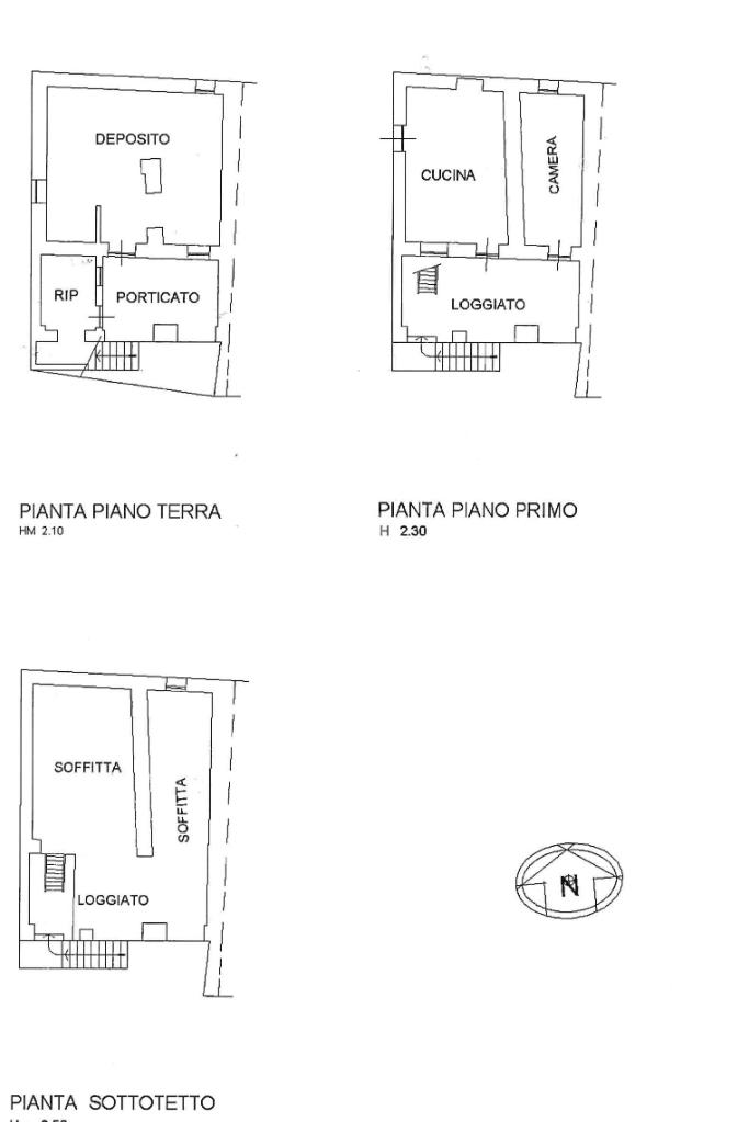
L'immobile si sviluppa su tre livelli.

Il piano terreno ospita alcuni locali accessori.

Al piano primo si sviluppa la parte abitativa che si compone di una cucina abitabile, una camera e un grazioso terrazzo da cui poter godere di un ottima vista panoramica.

Il secondo piano, ad oggi al grezzo, potrebbe essere sfruttato come ulteriore parte abitativa.

Questa soluzione è ideale per chi è alla ricerca di un immobile in zona panoramica lontano dallo stress quotidiano.

Mostra tutto

Nelle vicinanze

Trasporto pubblico Trasporto pubblico
Pecco (Chiesa)
Pecco (Chiesa)
190 m
Pecco
Pecco
330 m
Scuole Scuole
Scuola Primaria Statale di Vistrorio
1,2 Km
Scuola Primaria Statale di Loranzè
2,5 Km
Farmacia Farmacia
Farmacia Presbitero Bracco
1,7 Km
Farmacia Parella
2,1 Km
Farmacia Lo Verde
2,4 Km
Farmacia
3,0 Km
Negozi Negozi
Negozi
1,2 Km
A&O Vistrorio
1,3 Km
Mini Market Il Gusto Giusto
1,4 Km
Le Tome di Villa - panini, salumi, formaggi
1,4 Km
Alimentari
1,4 Km
Ristoranti Ristoranti
Ristorante La Tofeja
1,4 Km
La Tana del Lupo
1,4 Km
Pizzeria La Torbiera
1,5 Km
L'Ostegatto
1,5 Km
Bar ristorante la Torre
2,2 Km
Mostra tutto

Caratteristiche

Rif.:
61146155
Piano:
3 di 3 (Piano su più livelli)
Terrazzi:
2
Camere da letto:
1
Arredamento:
Completo
Condizionamento:
Assente
Mostra tutto
Prezzo Prezzo
€ 15.000
Rata mutuo Rata mutuo
€ 70 / mese
Spese annue Spese annue
€ 0
Proponi il tuo prezzoProponi il tuo prezzo

Classe Energetica

Questo immobile è esente da classe energetica
Anno di costruzione:
1800
Riscaldamento:
Autonomo
Tipo impianto:
A stufa
Tipo alimentazione:
Altro

Ti interessa visionare l'immobile?

Fissa un appuntamento  Fissa un appuntamento

Richiedi informazioni

Clicca su Leggi per aprire l'informativa
* Questi campi sono obbligatori

Calcola il tuo mutuo

Semplice e senza impegno
Anticipo

( % )
Mutuo

( % )

pochi semplici passi

inserisci i tuoi dati
Questionario completato
Grazie per aver richiesto un appuntamento senza impegno con un nostro Consulente del Credito e Assicurativo.

Hai inserito correttamente tutti i dati necessari e a breve riceverai una e-mail con un link da convalidare per inviare i tuoi dati.
Affiliato
Studio Castellamonte Uno Sas
Via Tenente Sergio Morello, 11 10081 Castellamonte (TO)

Il nostro staff


  • Anna Bozzello Verole
    Coordinatrice

  • Viktor Dipace
    Collaboratore

  • Jody Fontana
    Affiliato

  • Giada Magnani
    Collaboratrice

  • Luca Nicotra
    Collaboratore

  • Riccardo Ronza
    Affiliato

  • Matilde Roasio
    Collaboratrice
Via Tenente Sergio Morello, 11 10081 Castellamonte (TO)
Zona: Castellamonte-Valchiusella-Torre C.se-Bairo
Mostra su mappa
Orari: LUN - VEN 9.00 - 12.30 / 14.30 - 19.30 SAB. 9.00 - 12.30 / 14.30 - 18.30
Affiliato
Studio Castellamonte Uno Sas
Via Tenente Sergio Morello, 11 10081 Castellamonte (TO)

2026 Tecnocasa Franchising S.p.A. - P. IVA 08365160152 - Via Monte Bianco 60/A 20089 Rozzano (MI). Ogni agenzia ha un proprio titolare ed è autonoma. Privacy policy | Policy utilizzo | Cookie policy